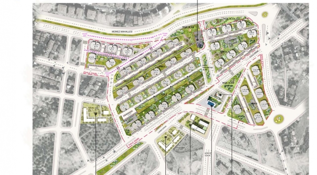
Büyükşehir Belediyesi tarafından konuyla ilgili olarak verilen bilgilere göre Beydağı Kentsel Dönüşüm Projesi kapsamında tamamlanarak hizmete giren ilk 2 etaptan sonra 3. Etapta da çalışmaların tamamlandığı bildirildi.3. Etap kapsamında 200 dönüm alan proje alanı olarak belirlenerek, bu alan içerisinde kalan ve anlaşma sağlanamayan vatandaşlara ait parsellere yönelik kamulaştırma davaları açıldı. Büyükşehir Belediyesi tarafından açılan bu davalar neticesinde toplam 25 Milyon Lira kamulaştırma bedeli ödendi.Kamulaştırılan alandaki binaların yıkımı ise yüzde 90 oranında tamamlanarak, söz konusu alan inşaata hazır hale getirildi. İnşaatlara ilişkin proje aşamasında da Büyükşehir Belediyesi tarafından gerekli izahat ve önerilerde bulunularak, yatay mimarinin esas alınması ve binaların maksimum 6 katlı olacak şekilde projelendirilmesi sağlandı.Malatya Beydağı Kentsel Dönüşüm projesi kapsamında; depreme dayanıklı tünel kalıp sistemi ile 886 adet konut ve 38 dükkân yapılacak. Sözleşmenin imzalanmasına müteakip 600 günde tamamlanmasını öngören ihale kapsamında ayrıca, yapı alanının altyapı ve çevre düzenleme işleri de gerçekleştirilecek. Böylece hak sahipleri daha modern, estetik, yaşam kalitesi yüksek, her türlü sosyal altyapı ve hizmet tesislerinin bulunduğu bir merkezde ikamet etme imkânına kavuşmuş olacak.İlk 2 etap çalışmalarında 3 bin 885 konut yapıldıÖte yandan Beydağı Kentsel Dönüşüm Projesi 3. Etap çalışmaları ile ilgili bilgi veren Büyükşehir Belediyesi İmar ve Şehircilik Dairesi Başkanlığı Kentsel Dönüşüm Gelişim ve Planlama Şube Müdürü Mevlüt Geleri, “Malatya Büyükşehir Belediyesi ile TOKİ arasında yapılan protokol kapsamında başlatılan Beydağı Kentsel Dönüşüm ve Yenileme Projesi 4 etap halinde planlanmıştır. 4 etap olarak çalışmaların yapıldığı Kentsel Dönüşüm Projesinde ilk 2 etap çalışmaları kapsamında 3 bin 885 konut, ile diğer sosyal tesisler yapılarak proje tamamlanmıştır.3. etap çalışmaları kapsamında belirlenen 20 hektarlık proje alanı belirlenmiştir. Bu alanda 2019 itibariyle kamulaştırma çalışmalarına başlanmış bu kapsamda şu ana kadar Büyükşehir Belediyesi tarafından 25 milyon kamulaştırma bedeli ödenmiştir. Kamulaştırma çalışmalarının tamamlandığı alanda 1000 bağımsız bölümün yıkımı gerçekleştirilerek inşaata hazır hale getirilmiştir. TOKİ tarafından bu alanın ihalesi 17 Ağustos 2020 tarihi itibariyle yapılmıştır. Bu kapsamda 886 konut ile 38 işyeri için proje ihalesi tamamlanmıştır. Yapılan ihale kapsamında tüm sosyal donatı alanları, çevre düzenleme çalışmaları ile Güney Kuşak Yolunun bu alan içerisinde kalan bölümü ile DSİ’ye ait kanalın deplase çalışmaları bu ihale içerisine alınmıştır.
Malatya
Yayınlanma: 01 Eylül 2020 - 11:24
TOKİ 3. ETAP İNŞAAT İHALESİ YAPILDI
Malatya Büyükşehir Belediyesi ile Çevre ve Şehircilik Bakanlığı Toplu Konut İdaresi (TOKİ) arasında düzenlenen protokol çerçevesinde 4 etaptan oluşan ve 3 bin 885 konut ve diğer sosyal tesislerin yer aldığı ilk 2 etap tamamlanarak hizmete sunuldu.
Malatya
01 Eylül 2020 - 11:24






